2 卧室
2 浴室
700 - 1100 sqft
平房
中央空调
风热取暖
$509,900
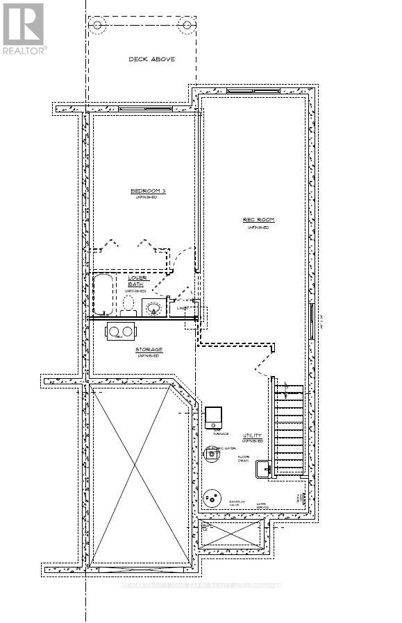
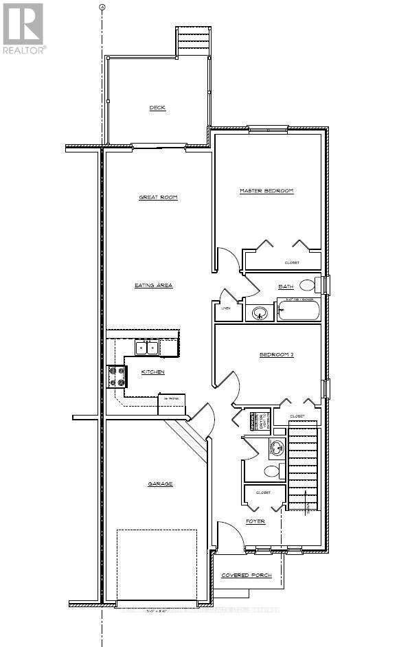
Built by Klemencic Homes and nestled in the desirable Hillside Meadows community in Trenton, this beautifully designed Klemencic Homes end-unit Burgundy Model townhome offers 1,023 sq ft of thoughtfully planned living space and charming curb appeal. The open concept main level features a modern kitchen that flows seamlessly into a spacious great room, creating the perfect space for entertaining or relaxing. Step out onto the back deck and enjoy outdoor living right from your main floor. This level also includes two bedrooms, including a comfortable primary bedroom, along with a 4 piece bathroom and convenient 2 piece powder room. An optional finished lower level offers additional living space with a rec room, third bedroom, and 4 piece bathroom - ideal for guests, family, or a home office. Conveniently located just minutes from Highway 401, schools, shopping, Walmart, and other local amenities, this home offers both comfort and accessibility. Includes a 7 year Tarion Warranty. Home Under Construction with estimated occupancy approximately 12 weeks from a firm sale. Model home available to view. (id:43681)
房源概要
|
MLS® Number
|
X12871404 |
|
房源类型
|
民宅 |
|
社区名字
|
Murray Ward |
|
附近的便利设施
|
近高尔夫球场, 医院, 公园, 礼拜场所, 学校 |
|
社区特征
|
School Bus |
|
特征
|
Level |
|
总车位
|
3 |
|
结构
|
Deck |
详 情
|
浴室
|
2 |
|
地上卧房
|
2 |
|
总卧房
|
2 |
|
建筑风格
|
平房 |
|
地下室进展
|
已完成 |
|
地下室类型
|
Full (unfinished) |
|
施工种类
|
附加的 |
|
空调
|
中央空调 |
|
外墙
|
砖, 石 |
|
Fire Protection
|
Smoke Detectors |
|
地基类型
|
混凝土浇筑 |
|
客人卫生间(不包含洗浴)
|
1 |
|
供暖方式
|
天然气 |
|
供暖类型
|
压力热风 |
|
储存空间
|
1 |
|
内部尺寸
|
700 - 1100 Sqft |
|
类型
|
联排别墅 |
|
设备间
|
市政供水 |
车 位
土地
|
英亩数
|
无 |
|
土地便利设施
|
近高尔夫球场, 医院, 公园, 宗教场所, 学校 |
|
污水道
|
Sanitary Sewer |
|
土地深度
|
108 Ft ,3 In |
|
土地宽度
|
30 Ft ,4 In |
|
不规则大小
|
30.4 X 108.3 Ft |
|
规划描述
|
R3-8 |
房 间
| 楼 层 |
类 型 |
长 度 |
宽 度 |
面 积 |
|
一楼 |
厨房 |
3.3 m |
2.92 m |
3.3 m x 2.92 m |
|
一楼 |
餐厅 |
3.63 m |
2.44 m |
3.63 m x 2.44 m |
|
一楼 |
大型活动室 |
3.66 m |
3.05 m |
3.66 m x 3.05 m |
|
一楼 |
主卧 |
3.99 m |
3.35 m |
3.99 m x 3.35 m |
|
一楼 |
第二卧房 |
3.66 m |
2.77 m |
3.66 m x 2.77 m |
|
一楼 |
洗衣房 |
3.51 m |
1.83 m |
3.51 m x 1.83 m |
设备间
https://www.realtor.ca/real-estate/29457151/lot-34-11-parkland-circle-quinte-west-murray-ward-murray-ward