3 卧室
2 浴室
1500 - 2000 sqft
平房
壁炉
中央空调, 换气器
风热取暖, Heat Pump, Not Known
$889,900
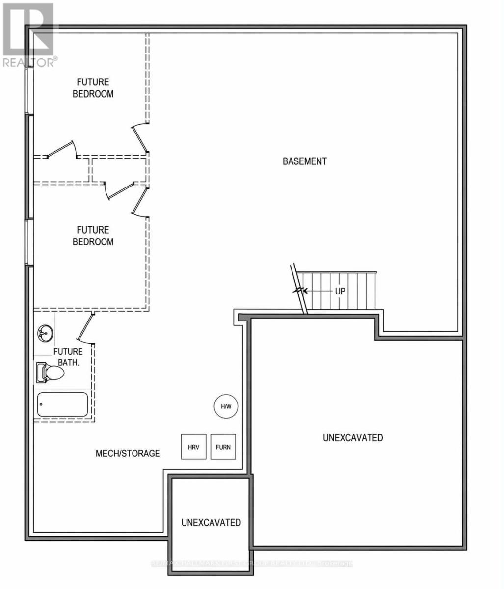
Another stunner! This to-be-built bungalow by one of Northumberland's most reputable builders, Hunt Custom Homes, is set on a spacious 1.98 acre rural lot just minutes from Highway 401 and central to both Brighton and Cobourg. Fully covered by a Tarion warranty and scheduled for completion in October, you can opt to finish the lower level with the builder or customize the main floor while time permits. Appreciate the quality and care through the well-appointed 1517 sqft above grade, designed to offer 3 bedrooms, 2 full bathrooms, an open concept living room with electric fireplace, functional formal dining area and custom kitchen with quartz countertops & centre island, as well as main floor laundry, inside access to the 2-car garage w/ insulated door & jack shaft opener, and a spacious primary suite with a walk-in closet and 4pc. ensuite with glass & tile free standing shower. An unfinished basement (8ft walls) features a bathroom rough-in and space for 2 bedrooms, a rec room and whatever else your future expansion needs are. Quality construction throughout with pot lighting, 3 1/2 inch window casing, 5 3/4 inch baseboard, 2x6 exterior walls, engineered hardwood flooring throughout principle living spaces, tile in bathrooms, quartz countertops, custom cabinetry, wood stairs leading to the lower level with upgraded railings, Moen plumbing fixtures and vaulted ceilings in the great room. Appreciate Energy-efficient mechanicals including 200amp service, heat pump, propane furnace, and HRV system. Exterior highlights include Northstar windows (black interior & exterior), white pine timber frame accent posts at the front entry and rear, stamped concrete walkway meets the front entry from the driveway, Trex composite rear deck boards, recycled asphalt driveway and more. Complete with drilled well, this home blends craftsmanship, comfort, and rural charm. (id:43681)
房源概要
|
MLS® Number
|
X13054444 |
|
房源类型
|
民宅 |
|
社区名字
|
Rural Cramahe |
|
社区特征
|
社区活动中心, School Bus |
|
设备类型
|
Propane Tank |
|
特征
|
树木繁茂的地区, Sloping |
|
总车位
|
6 |
|
租赁设备类型
|
Propane Tank |
|
结构
|
Deck |
|
View Type
|
View |
详 情
|
浴室
|
2 |
|
地上卧房
|
3 |
|
总卧房
|
3 |
|
Age
|
New Building |
|
公寓设施
|
Fireplace(s) |
|
家电类
|
Garage Door Opener Remote(s), Water Heater |
|
建筑风格
|
平房 |
|
地下室进展
|
已完成 |
|
地下室类型
|
Full (unfinished) |
|
施工种类
|
独立屋 |
|
空调
|
Central Air Conditioning, 换气机 |
|
外墙
|
石, 乙烯基壁板 |
|
Fire Protection
|
Smoke Detectors |
|
壁炉
|
有 |
|
Fireplace Total
|
1 |
|
地基类型
|
混凝土浇筑 |
|
供暖方式
|
电, Propane |
|
供暖类型
|
Forced Air, Heat Pump, Not Known |
|
储存空间
|
1 |
|
内部尺寸
|
1500 - 2000 Sqft |
|
类型
|
独立屋 |
车 位
土地
|
英亩数
|
无 |
|
污水道
|
Septic System |
|
土地深度
|
568 Ft ,9 In |
|
土地宽度
|
151 Ft ,4 In |
|
不规则大小
|
151.4 X 568.8 Ft |
设备间
https://www.realtor.ca/real-estate/29668132/716-penryn-road-cramahe-rural-cramahe