5 卧室
3 浴室
2500 - 3000 sqft
Raised 平房
壁炉
Wall Unit, 换气器
电加热器取暖, Heat Pump, Not Known
Landscaped
$1,284,900
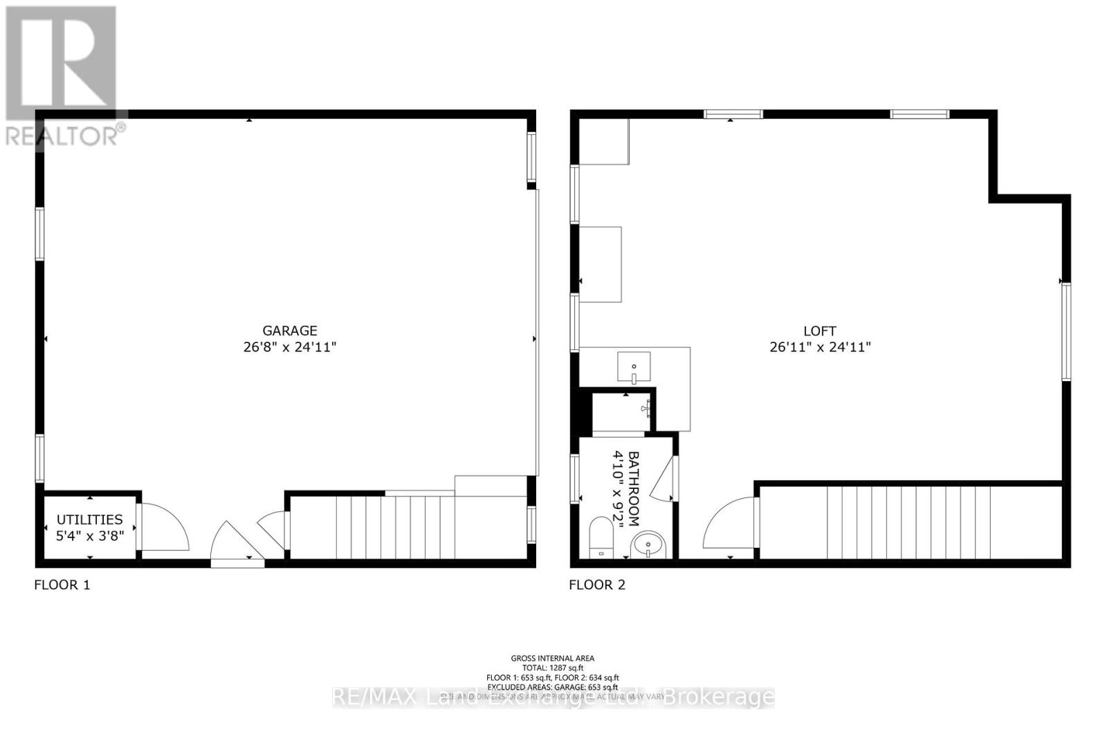
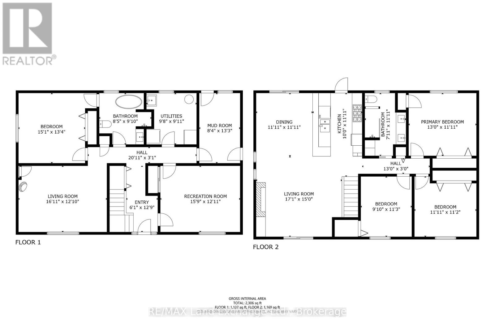
A distinctive raised bungalow in one of Saugeen Shores' most desirable pockets, just a short 3-minute walk to the sandy shores of Gobles Beach. Set on a beautifully private 100 x 215 ft lot backing onto mature trees, this property offers a rare blend of space, privacy, and lifestyle.The upper level showcases a bright, open-concept living, dining, and kitchen area designed for both everyday living and effortless entertaining. Step out to the expansive rear deck with sleek glass railings that frame the natural surroundings, along with a second elevated patio at the front of the home. The updated kitchen features rich cabinetry, quartz countertops, stainless steel appliances, and a Wolf gas stove. The living room is anchored by a modern gas fireplace with shiplap detailing, while large windows throughout fill the space with natural light. This level also offers three well-sized bedrooms and a stylishly updated bathroom with double sinks and a generous walk-in shower. On the main floor, you'll find additional versatile living space including a large bedroom, a second bedroom or flex room currently used as a fitness area, and a cozy family room with a European-style gas fireplace-perfect for relaxed evenings. The thoughtfully designed bathroom combines patterned tile, classic subway tile, and wallpaper accents, creating a space that feels both timeless and refined. A functional mudroom, main floor laundry, and direct access to the oversized double garage complete this level. Above the garage, a separate approximately 650 sqft suite offers exceptional flexibility with its own kitchen, bathroom, bedroom, and living space-ideal for guests, extended family, or potential income. With over 2,900 sqft of living space, a serene treed backdrop, and Port Elgin downtown just minutes away, this is an opportunity to enjoy a more relaxed, coastal lifestyle in a quiet, established setting. Be sure to book your private showing today. (id:43681)
房源概要
|
MLS® Number
|
X13060540 |
|
房源类型
|
民宅 |
|
社区名字
|
Saugeen Shores |
|
附近的便利设施
|
Beach |
|
特征
|
Cul-de-sac, 树木繁茂的地区, Backs On Greenbelt, Conservation/green Belt, 无地毯, Guest Suite, 亲戚套间 |
|
总车位
|
12 |
|
Water Front Name
|
Lake Huron |
详 情
|
浴室
|
3 |
|
地上卧房
|
5 |
|
总卧房
|
5 |
|
Age
|
31 To 50 Years |
|
公寓设施
|
Separate Heating Controls |
|
家电类
|
Garage Door Opener Remote(s), Water Heater, All, Blinds, 洗碗机, Furniture, 炉子, 窗帘, 冰箱 |
|
建筑风格
|
Raised Bungalow |
|
地下室进展
|
已装修 |
|
地下室功能
|
Walk Out |
|
地下室类型
|
N/a, N/a (finished) |
|
施工种类
|
独立屋 |
|
空调
|
Wall Unit, 换气机 |
|
外墙
|
砖 Veneer, 木头 |
|
壁炉
|
有 |
|
Fireplace Total
|
2 |
|
地基类型
|
混凝土 |
|
供暖方式
|
电, Natural Gas |
|
供暖类型
|
Baseboard Heaters, Heat Pump, Not Known |
|
储存空间
|
1 |
|
内部尺寸
|
2500 - 3000 Sqft |
|
类型
|
独立屋 |
|
设备间
|
市政供水 |
车 位
土地
|
英亩数
|
无 |
|
土地便利设施
|
Beach |
|
Landscape Features
|
Landscaped |
|
污水道
|
Sanitary Sewer |
|
土地深度
|
215 Ft ,1 In |
|
土地宽度
|
100 Ft |
|
不规则大小
|
100 X 215.1 Ft |
房 间
| 楼 层 |
类 型 |
长 度 |
宽 度 |
面 积 |
|
一楼 |
浴室 |
2.57 m |
3 m |
2.57 m x 3 m |
|
一楼 |
Mud Room |
2.54 m |
4.04 m |
2.54 m x 4.04 m |
|
一楼 |
设备间 |
2.95 m |
3.02 m |
2.95 m x 3.02 m |
|
一楼 |
家庭房 |
5.15 m |
3.91 m |
5.15 m x 3.91 m |
|
一楼 |
主卧 |
4.6 m |
4.06 m |
4.6 m x 4.06 m |
|
一楼 |
Bedroom 5 |
4.8 m |
3.94 m |
4.8 m x 3.94 m |
|
Upper Level |
厨房 |
3.05 m |
3.63 m |
3.05 m x 3.63 m |
|
Upper Level |
餐厅 |
3.38 m |
3.63 m |
3.38 m x 3.63 m |
|
Upper Level |
客厅 |
5.21 m |
4.57 m |
5.21 m x 4.57 m |
|
Upper Level |
主卧 |
3.96 m |
3.63 m |
3.96 m x 3.63 m |
|
Upper Level |
第二卧房 |
3.63 m |
3.4 m |
3.63 m x 3.4 m |
|
Upper Level |
第三卧房 |
3 m |
3.43 m |
3 m x 3.43 m |
|
Upper Level |
浴室 |
2.41 m |
3.63 m |
2.41 m x 3.63 m |
https://www.realtor.ca/real-estate/29675695/5-goble-place-saugeen-shores-saugeen-shores