1 ac
面积
$3,880,000
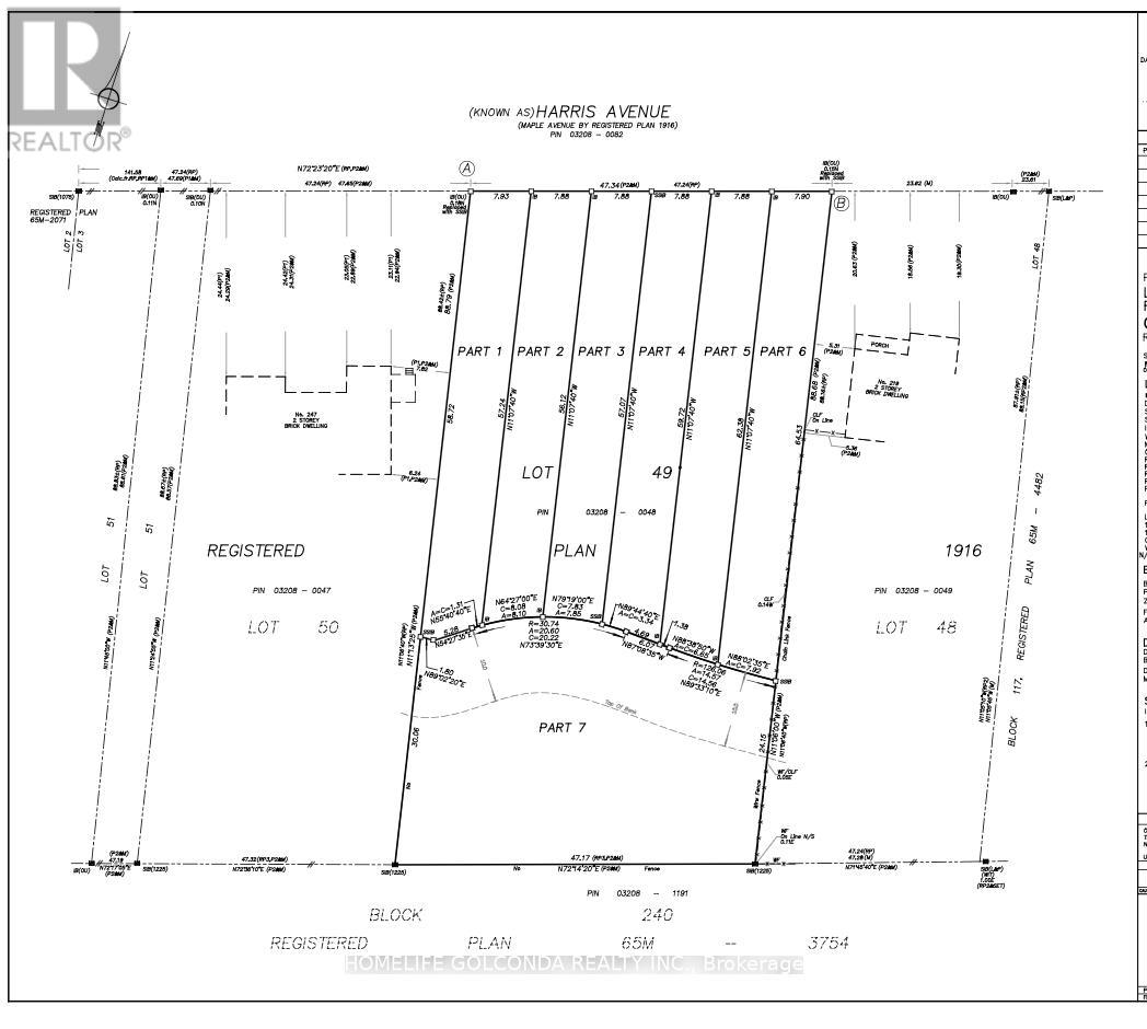
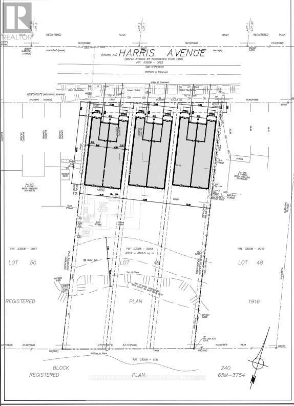
*ATTN BUILDERS AND INVESTORS* ZONING APPROVED, SERVICED SEMI-DETACHED DEVELOPMENT ** The property has aconditionally approved consent application for a 6-unit SEMI-DETACHED. Approval is progressing in the process of satisfying theengineering conditions (final stage). Once conditions are met, you can apply for a building permit. Buyers can move forward knowing theapplication is in an advanced stage, pending final steps. The lots are being FULLY SERVICED. Each unit has a side entrance to the basement.Units range approximately 2,700 sqft. in size, with long, deep, and back to the ravine. Extremely well located in the affluent & sought-afterJefferson community. A construction project is underway to provide an additional area on the north side of the Site. This premier locationoffers luxury living with convenient access to top-rated schools, parks, shopping, dining, and major transit routes. Mature trees and upscaleresidences surround the serene neighbourhood. There is a 2-story home with well water and septic on the property (id:43681)
房源概要
|
MLS® Number
|
N13045164 |
|
房源类型
|
Vacant Land |
|
社区名字
|
Jefferson |
|
附近的便利设施
|
公共交通 |
|
设备类型
|
热水器 |
|
特征
|
Conservation/green Belt |
|
总车位
|
8 |
|
租赁设备类型
|
热水器 |
详 情
土地
|
英亩数
|
有 |
|
土地便利设施
|
公共交通 |
|
土地深度
|
289 Ft ,3 In |
|
土地宽度
|
155 Ft |
|
不规则大小
|
1.031 |
|
Size Total
|
1.031 Ac |
|
规划描述
|
Semi-detached One (rd1) Zone |
https://www.realtor.ca/real-estate/29657782/229-harris-avenue-richmond-hill-jefferson-jefferson