3 卧室
1 浴室
1100 - 1500 sqft
平房
壁炉
Above Ground Pool
Wall Unit
Heat Pump
湖景区 On Creek
面积
$519,900
Set on just over 10 acres with waterfront access, this year-round property offers space, privacy, and the opportunity to create something truly your own, all within 20 minutes of the village. The home features an open-concept kitchen and living area with views of the water and a wood stove that adds warmth and character. With multiple high-speed internet options available, it's well-suited for those working from home or looking for a quieter setting outside of town.Step outside to the open space, mature trees, and abundant wildlife creating a peaceful backdrop, with plenty of room to explore, garden, or simply enjoy the outdoors. There's also a 24-ft above-ground pool for summer days, along with an insulated workshop, drive shed, and separate garage that provide excellent storage and flexibility for hobbies or recreational use. If you've been looking for acreage, privacy, and waterfront access with room to add value, this is an opportunity worth exploring. (id:43681)
房源概要
|
MLS® Number
|
X13060156 |
|
房源类型
|
民宅 |
|
社区名字
|
Marmora Ward |
|
Easement
|
没有 |
|
设备类型
|
Water Softener |
|
特征
|
Irregular Lot Size |
|
总车位
|
6 |
|
泳池类型
|
Above Ground Pool |
|
租赁设备类型
|
Water Softener |
|
Water Front Name
|
Beaver Creek |
|
湖景类型
|
Waterfront On Creek |
详 情
|
浴室
|
1 |
|
地上卧房
|
3 |
|
总卧房
|
3 |
|
公寓设施
|
Fireplace(s) |
|
家电类
|
Water Treatment, 洗碗机, 烘干机, 微波炉, 炉子, 洗衣机, 冰箱 |
|
建筑风格
|
平房 |
|
地下室类型
|
没有 |
|
施工种类
|
独立屋 |
|
空调
|
Wall Unit |
|
外墙
|
木头 |
|
壁炉
|
有 |
|
地基类型
|
水泥, 木头/piers |
|
供暖方式
|
电 |
|
供暖类型
|
Heat Pump |
|
储存空间
|
1 |
|
内部尺寸
|
1100 - 1500 Sqft |
|
类型
|
独立屋 |
车 位
土地
|
入口类型
|
Year-round Access |
|
英亩数
|
有 |
|
污水道
|
Septic System |
|
土地深度
|
1345 Ft ,3 In |
|
土地宽度
|
429 Ft ,2 In |
|
不规则大小
|
429.2 X 1345.3 Ft |
|
规划描述
|
Sr-1 |
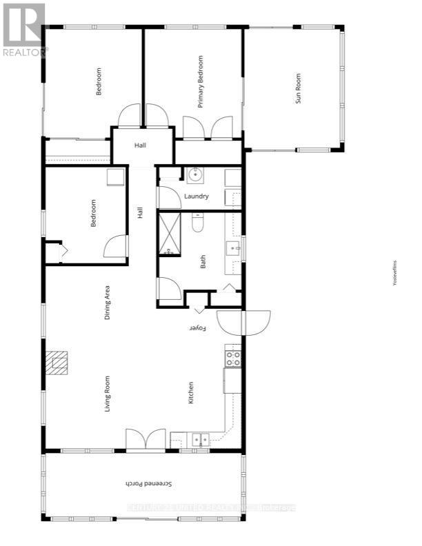
房 间
| 楼 层 |
类 型 |
长 度 |
宽 度 |
面 积 |
|
一楼 |
厨房 |
5.08 m |
3.08 m |
5.08 m x 3.08 m |
|
一楼 |
客厅 |
6.42 m |
4.12 m |
6.42 m x 4.12 m |
|
一楼 |
主卧 |
4.03 m |
3.54 m |
4.03 m x 3.54 m |
|
一楼 |
第二卧房 |
4.2 m |
3.54 m |
4.2 m x 3.54 m |
|
一楼 |
第三卧房 |
3.48 m |
3 m |
3.48 m x 3 m |
|
一楼 |
Sunroom |
4.2 m |
3.35 m |
4.2 m x 3.35 m |
|
一楼 |
Sunroom |
2.29 m |
7.2 m |
2.29 m x 7.2 m |
|
一楼 |
洗衣房 |
1.47 m |
2.98 m |
1.47 m x 2.98 m |
https://www.realtor.ca/real-estate/29674959/1612-shanick-road-marmora-and-lake-marmora-ward-marmora-ward