2 卧室
2 浴室
600 - 699 sqft
中央空调
风热取暖
$2,550 Monthly
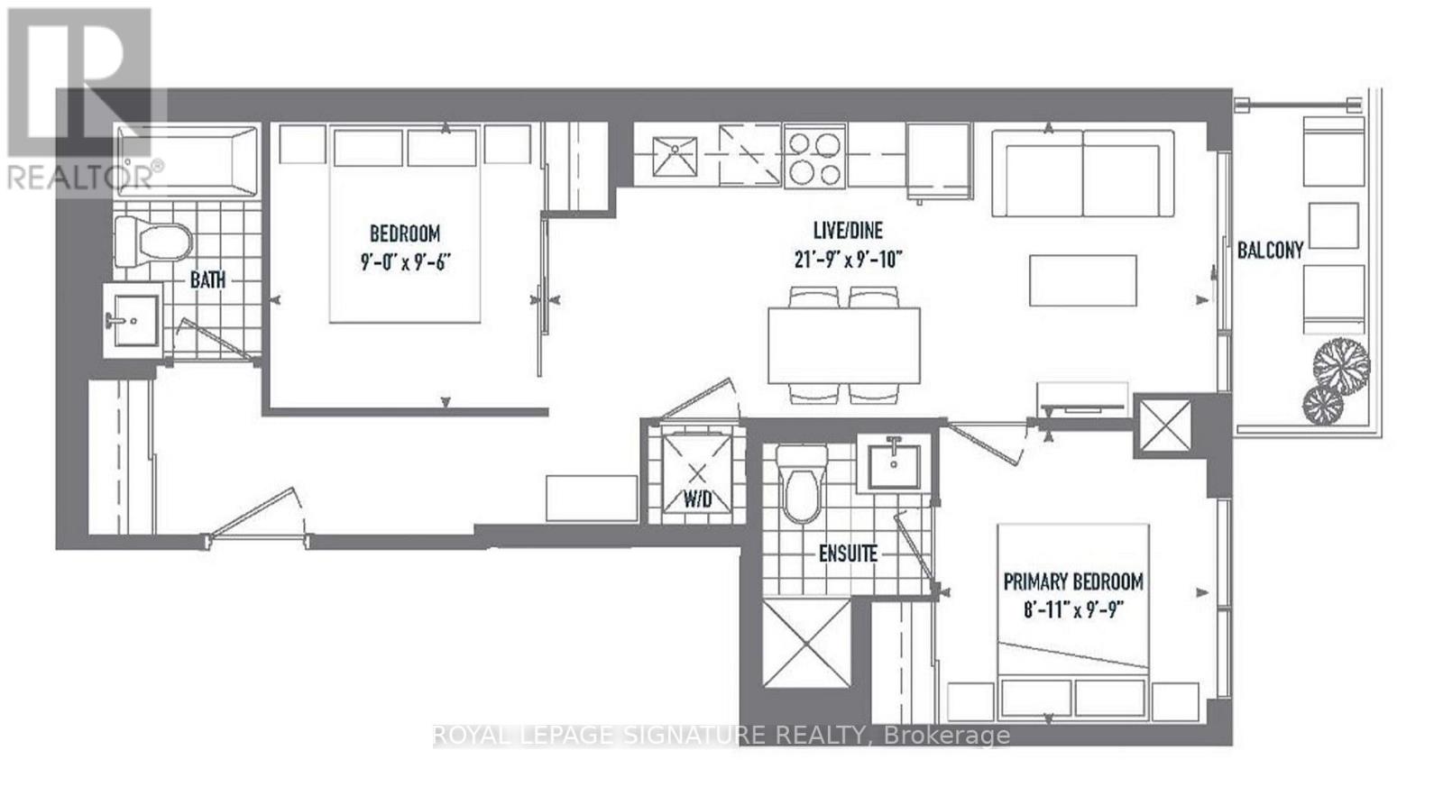
Brand-new 2-bedroom, 2-bathroom suite on the 14th floor of 75 James in the heart of Hamilton. Offering 665 sq. ft. plus a 54 sq. ft. balcony, this bright open-concept layout features floor-to-ceiling windows, city and escarpment views, quartz countertops, designer cabinetry, stainless steel appliances, and in-suite laundry. The primary bedroom includes a private ensuite, while the second bedroom is perfect for guests or a home office. Residents enjoy premium amenities including 24-hour concierge, fitness centre, co-working lounges, party rooms, and rooftop terrace with BBQs. Steps to GO Transit, future LRT, McMaster University downtown campus, hospitals, parks, shops, and restaurants. A fantastic opportunity to lease in one of Hamilton's most connected new communities. (id:43681)
房源概要
|
MLS® Number
|
X13064598 |
|
房源类型
|
民宅 |
|
社区名字
|
Corktown |
|
社区特征
|
Pets Allowed With Restrictions |
|
特征
|
Elevator, 阳台 |
|
总车位
|
1 |
|
结构
|
Clubhouse |
|
View Type
|
City View |
详 情
|
浴室
|
2 |
|
地上卧房
|
2 |
|
总卧房
|
2 |
|
Age
|
New Building |
|
公寓设施
|
健身房, Canopy, Storage - Locker, Security/concierge |
|
家电类
|
Barbeque, 洗碗机, 烘干机, 微波炉, 炉子, 洗衣机, 冰箱 |
|
地下室类型
|
没有 |
|
空调
|
中央空调 |
|
外墙
|
混凝土块 |
|
Fire Protection
|
Controlled Entry |
|
Flooring Type
|
Laminate |
|
地基类型
|
混凝土 |
|
供暖方式
|
天然气 |
|
供暖类型
|
压力热风 |
|
内部尺寸
|
600 - 699 Sqft |
|
类型
|
公寓 |
车 位
土地
房 间
| 楼 层 |
类 型 |
长 度 |
宽 度 |
面 积 |
|
一楼 |
客厅 |
6.62 m |
3 m |
6.62 m x 3 m |
|
一楼 |
餐厅 |
6.62 m |
3 m |
6.62 m x 3 m |
|
一楼 |
主卧 |
2.71 m |
2.96 m |
2.71 m x 2.96 m |
|
一楼 |
第二卧房 |
2.74 m |
2.59 m |
2.74 m x 2.59 m |
https://www.realtor.ca/real-estate/29680451/1401-75-james-street-hamilton-corktown-corktown